SOLD!!
Welcome To
E6843 Fawn Valley Drive
Reedsburg
$324,900
Check
Out The Video HERE!
Click
the Projector for a Slideshow ~!

Terrific Four Bedroom, Three Bath Home on 1.6 Acres!!!
 

 
 

The Kitchen & Dinette Easily Flow as One Space!
 

A Large Living Room w/Bay Window

Inviting Entryway w/Coat Closet

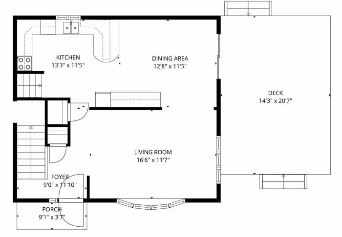
Main Level Floor Plan (Dimensions are Approximate)
 

Cozy Family Room/Den/Office...whatever YOUR life Demands!
 

Lower Level is Home to this Laundry Room & Bath Combo

Lower Level Floor Plan (Dimensions are Approximate)
 

Primary Bedroom with Hardwood Flooring and a Private Bath
 
 
 
Three Additional Bedrooms...All with Great Closet Space

Upper Level Full Bath w/Tub-Shower Combination

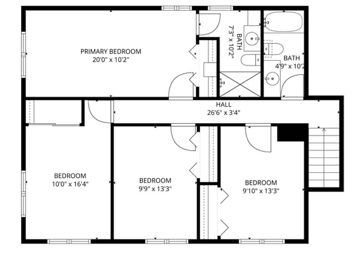
Upper Level Plan (Dimensions are Approximate)
 
1.6 Acres! Barely Out of Town...but OUT of Town!

Relaxing Deck Off of the Dinette
 
Nicely Place on the Land to Give you Plenty of Play Space or Grow your Garden!!

You Also have PRETTY WOODLANDS to Explore!
 
Welcome Home!
Printable
Brochure
More Homes
Questions?
E-Mail The JulieSells Team
"Your
Friend In Real Estate"
Julie Alibrando, GRI, Broker-Associate
Licensed In Wisconsin
Certified Residential Specialist
RE/MAX
Preferred
100 E. Main Street, P.O. Box 56
LaValle, WI 53941
608-985-8484 LaValle Office
608-963-1093 TEXT
608-524-0600 Reedsburg Link
©Copyright
2001-2002-2003-2004-2005-2006-2007-2008-2009-2010-2011-2012-2013-2014-2015-2016-2017-2018-2019-2020-2021-2022-2023-2024-2025
Designed & Maintained by Julie Alibrando, JulieSells LLC all
rights reserved
|